破坏诉前保全证据对专利侵权案的后果
【裁判要旨】
一审
原告周勤(二审被上诉人)因发现被告瑞之顺公司(二审上诉人)存在涉嫌专利侵权行为,向原审法院提出诉前证据保全申请,后原审法院对诉前保全的被诉侵权产品进行现场勘验,但因瑞之顺公司擅自转移诉前保全证据进而导致该证据灭失,该行为直接影响侵权判断的有效进行,法院依法认定诉前保全证据即被诉侵权产品落入涉案专利权利要求1的保护范围,构成专利侵权。
同时,法院根据瑞之顺公司的经营范围、瑞之顺公司网站宣传展示内容、瑞之顺公司股东黄悦明的抖音信息、瑞之顺法人与周勤的关系、原审法院诉前证据保全情况以及本案诉中现场勘验等情况,认定瑞之顺公司存在制造、销售、许诺销售被诉侵权产品的行为,且主观上存在恶意,侵权规模较大,情节较为恶劣。
此外,瑞之顺公司所提出的不侵权抗辩,显然与其先前的委托诉讼代理人提交的书面答辩状和听证过程中所确认的基本事实相悖,而诉前保全证据灭失亦导致被诉侵权产品的技术特征难以根据诉前证据保全图片作出有效辨别,瑞之顺公司在毁灭重要证据的情况下提出的不侵权抗辩缺乏依据
二审
本案中,涉案专利权利要求1限定了诸多技术特征,且部分技术特征涉及产品内部结构及位置连接关系,故如果无法接触、观察被诉侵权产品实物,显然不易查明被诉侵权产品实施的技术方案是否全面覆盖涉案专利权利要求1所限定的全部技术特征。原审法院在对被诉侵权产品采取证据保全时已明确告知瑞之顺公司不得擅自改变证据保全之证物的现状,瑞之顺公司的法定代表人在保全笔录上亦签字确认。
但随后瑞之顺公司对证据保全的被诉侵权产品所实施的妨害民事诉讼行为,导致原审法院的勘验目的落空,无法组织双方当事人围绕被诉侵权产品实物展开技术特征比对,严重悖离诚信原则,且人为加大了法院查明技术事实的难度,理应为此承担相应不利的法律后果。
原审法院基于瑞之顺公司实施的妨害民事诉讼行为,依法推定被诉侵权产品实施的技术方案落入涉案专利权利要求1的保护范围,并无不当。

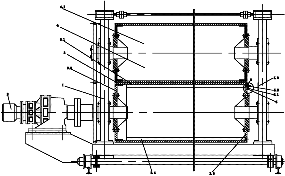
(图为涉案专利)
【附判决书】
中华人民共和国最高人民法院
民 事 判 决 书
(2021)最高法知民终334号
上诉人(原审被告):无锡瑞之顺机械设备制造有限公司。住所地:江苏省无锡市新吴区鸿山新兴路3号。
法定代表人:杨宁,该公司执行董事。
委托诉讼代理人:周泉,北京恒都律师事务所专利代理师。
委托诉讼代理人:金旭鹏,北京恒都律师事务所专利代理师。
被上诉人(原审原告):周勤,男,1979年12月5日出生,汉族,住浙江省杭州市萧山区。
委托诉讼代理人:赵臻淞,江苏漫修律师事务所律师。
委托诉讼代理人:倪歆晨,江苏漫修律师事务所律师。
上诉人无锡瑞之顺机械设备制造有限公司(以下简称瑞之顺公司)因与被上诉人周勤侵害发明专利权纠纷一案,不服江苏省苏州市中级人民法院于2020年11月25日作出的(2019)苏05知初1122号民事判决,向本院提起上诉。本院于2021年3月10日立案后依法组成合议庭,并于2021年5月17日询问当事人。瑞之顺公司的委托诉讼代理人周泉、金旭鹏,周勤的委托诉讼代理人赵臻淞、倪歆晨到庭参加询问。本案现已审理终结。
瑞之顺公司上诉请求:1.撤销原审判决,依法改判或发回重审;2.本案一、二审诉讼费由周勤承担。事实和理由:
(一)原审法院以“诉前保全证据灭失”为由直接认定被诉侵权产品落入周勤享有的专利号为ZL201110375874.1、名称为“排水板成型机”的发明专利(以下简称涉案专利)之权利要求1的保护范围,忽视了将拍照、录像保全到的被诉侵权产品与涉案专利进行技术特征的对比,属于事实认定错误。原审法院已经通过采取拍照、录像的方式对被诉侵权产品进行了证据保全,被诉侵权产品的部分技术特征可以通过拍照、录像形成的照片或视频得到反映。通过原审法院拍照、录像所形成的保全证据,可以明显看出被诉侵权产品缺少冲压粒子、冲压粒子固定螺杆、真空泵、连通管路等外部结构,故被诉侵权产品不具有涉案专利权利要求1所限定的如下技术特征:
1.设于主滚筒外侧面上的冲压粒子阵列;
2.用于把冲压粒子固定在主滚筒外侧面上的冲压粒子固定螺杆;
3.冲压粒子与主滚筒外侧面相连的底面上设有一个与冲压粒子同轴的圆锥形或圆柱形的匀气凹腔及至少一条与匀气凹腔相通的径向抽气凹槽;
4.冲压粒子固定螺杆上设有导通匀气凹腔和抽真空抽气通道的导气结构;
5.真空泵;
6.抽气孔和真空泵之间设有连通管路。
(二)原审法院以“瑞之顺公司的前述行为导致诉前保全证据灭失,直接影响本案侵权判断的有效进行”为由,认定被诉侵权产品落入涉案专利权利要求1的保护范围,不符合法律规定。瑞之顺公司因转移诉前保全证据导致证据灭失,确应承担相应的不利后果。但是,由于被诉侵权产品实物缺失,导致无法查明被诉侵权产品的内部结构。于此情况下,不应推定被诉侵权产品具有与涉案专利权利要求1记载的相应技术特征相同的内部特征,进而认为被诉侵权技术方案落入涉案专利权利要求1的保护范围。
瑞之顺公司因转移诉前保全证据导致证据灭失,已经承担被原审法院司法惩戒的不利后果,但是原审法院不恰当地扩大了该不利后果的范围,剥夺了瑞之顺公司用拍照、录像保全的证据与涉案专利进行对比的权利,径行认定被诉侵权技术方案落入涉案专利权利要求1的保护范围,上述做法不符合法律和相关司法解释的规定。
周勤辩称:
(一)原审法院关于瑞之顺公司提出的不侵权抗辩与其先前委托的一审诉讼代理人在书面答辩和听证中自认的基本事实相悖的认定正确。
1.瑞之顺公司关于被诉侵权产品不存在“冲压粒子”“冲压粒子固定螺杆”“真空泵”等外部技术特征的抗辩是该公司在一审阶段更换委托诉讼代理人后新提出的抗辩意见,该意见与其先前委托的诉讼代理人在向原审法院提交的答辩状和参加原审法院组织的证据交换中确认的事实相悖。
2.瑞之顺公司的官网图片清楚显示被诉侵权产品的主滚筒上装配有冲压粒子。瑞之顺公司的股东黄悦明在其个人抖音中上传的大量视频、图片清楚显示试机、生产中的主滚筒上装配有冲压粒子。周勤在广东省东莞市发现并拍摄的被瑞之顺公司擅自转移原审法院证据保全的被诉侵权产品照片,亦清晰显示被诉侵权产品投入使用后具备冲压粒子、冲压粒子固定螺杆、真空泵等技术特征。
(二)原审法院关于瑞之顺公司擅自转移诉前保全证据导致证据灭失,须承担侵权成立之不利后果的认定正确。根据《最高人民法院关于民事诉讼证据的若干规定》(以下简称民事诉讼证据规定)第十四条之规定,瑞之顺公司擅自转移法院诉前保全的被诉侵权产品,导致无法进行技术特征比对,应承担相应不利的后果,该不利后果即为直接推定被诉侵权产品的技术方案落入涉案专利权的保护范围。
(三)瑞之顺公司擅自转移诉前保全证据,不仅可能导致周勤的诉讼主张无法成立,同时也严重妨碍了正常的诉讼秩序,因此应当承担两项不利后果:一方面,原审法院对瑞之顺公司进行罚款的司法惩戒属于公法意义上的制裁,针对的对象是瑞之顺公司妨害民事诉讼、扰乱正常司法秩序的行为;另一方面,推定被诉侵权技术方案落入涉案专利权保护范围是私法意义上的惩罚,目的在于保障当事人的合法权利得以实现。综上,瑞之顺公司的上诉请求不能成立,请求驳回上诉,维持原判。
周勤向原审法院提起诉讼,原审法院于2019年11月6日立案受理,周勤起诉请求:1.判令瑞之顺公司立即停止侵犯涉案专利权的行为,即停止制造、销售、许诺销售侵权产品,销毁库存侵权产品;2.判令瑞之顺公司赔偿周勤经济损失及合理维权费用共计100万元;3.判令瑞之顺公司承担本案诉讼费。
瑞之顺公司原审辩称:(一)瑞之顺公司已向国家知识产权局申请宣告涉案专利权无效,涉案专利权缺乏新颖性和创造性,应当被宣告无效。(二)被诉侵权产品未落入涉案专利权的保护范围,不构成侵权。综上,请求驳回瑞之顺公司的诉讼请求。
原审法院认定事实:周勤于2011年11月23日向国家知识产权局申请涉案专利,于2013年12月11日获得授权,涉案专利权处于有效期内。涉案专利权共有10项权利要求,周勤主张保护权利要求1,其内容为:一种排水板成型机,包括机架、滚筒驱动电机、左右两端滚动支撑在机架上的主滚筒组件和副滚筒组件;主滚筒组件包括主滚筒、与主滚筒左右两端固定相连的圆环形端板、设于主滚筒外侧面上的冲压粒子阵列,用于把冲压粒子固定在主滚筒外侧面上的冲压粒子固定螺杆;副滚筒组件包括副滚筒,副滚筒的外侧面上设有与冲压粒子配合工作的冲压凹腔阵列,其特征是:
设于主滚筒上的与冲压粒子固定螺杆适配的固定螺杆连接螺孔与主滚筒的内侧面相通,主滚筒的内侧面设有若干走向与主滚筒轴向相同的抽真空抽气通道,每个抽真空抽气通道与相应的一列固定螺杆连接螺孔相通,抽真空抽气通道的左端为封闭端,抽真空抽气通道的右端与主滚筒右端的圆环形端板固连,相应的主滚筒右端的圆环形端板上布设有分别与对应位置的抽真空抽气通道相通的若干通气孔;
冲压粒子与主滚筒外侧面相连的底面上设有一个与冲压粒子同轴的圆锥形或圆柱形的匀气凹腔及至少一条与匀气凹腔相通的径向抽气凹槽;冲压粒子固定螺杆上设有导通匀气凹腔和抽真空抽气通道的导气结构;主滚筒右端的圆环形端板右侧设有抽真空结构,所述抽真空结构包括与主滚筒右端的圆环形端板右侧面滑动密封的密封滑块、用于使密封滑块保持在固定位置且与圆环形端板紧密贴合的滑块定位压紧结构和真空泵;
密封滑块的左侧面设有抽气扇环槽,密封滑块的右侧面设有与抽气扇环槽相通的抽气孔,抽气孔和真空泵之间设有连通管路,抽气扇环槽的中心圆与主滚筒右端的圆环形端板上的通气孔圆心的轨迹圆圆心同心,抽气扇环槽前端的过渡半圆圆心固定位于主滚筒的轴线和副滚筒的轴线所确定的平面和通气孔圆心轨迹线的相交点上,抽气扇环槽后端的过渡半圆圆心相对于前端过渡半圆圆心转过的圆心角至少等于主滚筒上相邻两个通气孔的圆心分别与它们的轨迹圆中心相连所成的夹角。
原审诉讼中,瑞之顺公司向国家知识产权局申请宣告涉案专利无效,国家知识产权局于2020年5月19日作出第44598号无效宣告请求审查决定(以下简称第44598号审查决定),决定维持涉案专利权有效。
因发现瑞之顺公司存在涉嫌侵权行为,周勤向原审法院提出诉前证据保全申请,原审法院于2019年9月23日立案受理,于2019年10月18日作出(2019)苏05证保61号民事裁定书。
2019年10月25日,原审法院至瑞之顺公司当时的经营地点无锡市新吴区振发五路16号对其被诉侵权的排水板成型机采取保全措施,现场共拍照十张并制作证据保全笔录一份,保全笔录明确告知瑞之顺公司不得破坏或者转移保全证据,瑞之顺公司法定代表人杨宁作为在场人在保全笔录上签字确认。
周勤根据前述诉前证据保全于2019年11月6日向原审法院提起专利侵权之诉。瑞之顺公司委托代理人顾新伟、时锋于2019年11月21日向原审法院提交答辩状,答辩状记载:……二、即便涉案专利有效,瑞之顺公司产品的技术特征并未覆盖其全部权利要求,不构成侵权。1.权利要求1中描述……,但瑞之顺公司产品的抽气槽轴线位于两个滚筒轴线的平面内。2.权利要求5中描述……,但瑞之顺公司的产品,其冲压粒子侧面的凸台凹槽与冲压粒子轴线并不平行,而是贯穿冲压粒子的整个侧面。3.权利要求7中描述……,但瑞之顺公司的产品,其底部匀气凹腔为圆柱形。4.权利要求9中描述……,但瑞之顺公司的冲压粒子与固定螺杆之间没有点固结构,而是通过两者之间更加紧密的螺纹配合来达到防松的效果。瑞之顺公司委托代理人顾新伟、时锋在2019年12月17日的证据交换中陈述:我来稍微解释一下。这个东西它本身特别简单,就是一个巨大的铁架子,然后是上下两个滚筒,然后它是靠电机来驱动这两个滚筒。滚筒一个是凸的,一个是凹的,拆解的话恐怕非常费劲的,然后外加一个抽真空的一个设备,它就是这样一个状态。
原审法院于2020年7月17日对诉前保全的被诉侵权产品进行现场勘验。现场勘验前,瑞之顺公司的委托代理人电话告知原审法院,该公司已将被诉侵权产品由诉前证据保全地点无锡市新吴区振发五路16号迁移至其现在的经营地点无锡市新吴区经发一路7号,原审法院遂于2020年7月17日前往无锡市新吴区经发一路7号进行勘验。经将瑞之顺公司指认的排水板成型机与诉前保全图片进行比对,可以确定该排水板成型机并非原审法院诉前保全的被诉侵权产品。瑞之顺公司法定代表人杨宁陈述其原经营地点无锡市新吴区振发五路16号因拆迁导致搬迁,被诉侵权产品已不知去向。
除前述原审法院采取的诉前证据保全外,周勤还就瑞之顺公司的其他涉嫌侵权行为进行了多次公证证据保全。
其一,周勤于2019年5月22日向浙江省杭州市湘湖公证处申请保全证据公证,该公证处于2019年5月29日出具(2019)浙杭湘证字第3730号公证书,周勤担任法定代表人的杭州骏恒机械设备制造有限公司(以下简称骏恒公司)为此支付公证费3000元。根据公证书记载,周勤于2019年5月22日使用公证处已连接互联网的电脑启动IE浏览器、输入www.wxrzsjx.com并浏览瑞之顺公司网站,网站记载“瑞之顺公司是一家集研发、设计、制造、销售、服务于一体的公司,专业生产防水板、土木模设备系列;排水板设备系列;吸塑机系列、辊筒系列等设备”,“产品中心”页面亦显示有相关的排水板设备。
其二,周勤的委托代理人倪歆晨于2020年1月7日向江苏省无锡市江南公证处申请保全证据公证,该公证处于2020年1月8日出具(2020)苏锡江南证字第208号公证书,骏恒公司为此支付公证费2040元。根据公证书记载,倪歆晨在其持有的手机点击“抖音”软件并在搜索栏中输入“我在无锡等你”后点击第一个搜索结果“我在无锡等你黄悦明”,后进入该抖音页面选择视频进行播放,视频显示有发往河北、新疆等地的多条排水板生产线。瑞之顺公司在原审审理中确认黄悦明为其公司股东及监事,公证所载抖音账号为黄悦明所有。
原审法院另查明,周勤就本案纠纷与江苏漫修律师事务所签订委托合同,约定代理费为50000元,骏恒公司实际支付律师代理费50000元。此外,就本案涉及的瑞之顺公司及骏恒公司,原审法院进一步查明:瑞之顺公司成立于2018年11月2日,法定代表人杨宁,股东为杨宁、黄悦明,经营范围为机械设备的制造、加工等;骏恒公司成立于2010年7月15日,法定代表人为周勤,2018年9月4日股东由周勤、杨宁变更为周勤,公司高管人员由法定代表人周勤、监事杨宁变更为法定代表人周勤、监事周壮姐。
原审法院认为,周勤系涉案专利的专利权人,国家知识产权局作出的第44598号审查决定维持涉案专利权有效,涉案专利权依法应受保护。
周勤依据原审法院诉前保全证据就瑞之顺公司的行为提起专利侵权之诉。因瑞之顺公司擅自转移诉前保全证据进而导致该证据灭失。《最高人民法院关于知识产权民事诉讼证据的若干规定》(以下简称知识产权民事诉讼证据规定)第十四条规定:“对于人民法院已经采取保全措施的证据,当事人擅自拆装证据实物、篡改证据材料或者实施其他破坏证据的行为,致使证据不能使用的,人民法院可以确定由其承担不利后果。构成民事诉讼法第一百一十条规定情形的,人民法院依法处理。”
原审法院诉前保全证据系本案进行侵权判断的关键证据,瑞之顺公司的行为导致诉前保全证据灭失,直接影响侵权判断的有效进行,原审法院依法认定诉前保全证据即被诉侵权产品落入涉案专利权利要求1的保护范围,构成专利侵权。就瑞之顺公司提出的不侵权抗辩,该抗辩显然与其先前的委托诉讼代理人提交的书面答辩状和听证过程中所确认的基本事实相悖,而诉前保全证据灭失亦导致被诉侵权产品的技术特征难以根据诉前证据保全图片作出有效辨别,瑞之顺公司在毁灭重要证据的情况下提出的不侵权抗辩缺乏依据,原审法院不予采纳。
关于瑞之顺公司侵权责任的承担。首先,根据瑞之顺公司的经营范围、瑞之顺公司网站宣传展示内容、瑞之顺公司股东黄悦明的抖音信息、原审法院诉前证据保全情况以及本案诉中现场勘验的情况,足以认定瑞之顺公司存在制造、销售、许诺销售被诉侵权产品的行为,周勤诉请判令瑞之顺公司停止制造、销售、许诺销售侵权产品并销毁库存侵权产品的依据充分,原审法院予以支持。
其次,就周勤所提赔偿请求,原审法院依法予以全额支持并对此分析如下:
其一,涉案专利为发明专利,瑞之顺公司虽申请宣告涉案专利权无效,但被国家知识产权局驳回,可见涉案专利权稳定,且被诉侵权产品价值较大;
其二,瑞之顺公司法定代表人杨宁与周勤曾共同投资设立骏恒公司并共同担任该公司的高级管理人员,杨宁对周勤享有涉案专利权理应知晓,故瑞之顺公司就其实施的专利侵权行为,主观上存在恶意;
其三,瑞之顺公司存在制造、销售、许诺销售侵权产品等多种形式的侵权行为,瑞之顺公司股东黄悦明的抖音信息亦显示其曾向河北、新疆等地发送过排水板生产线,可见瑞之顺公司侵权规模较大,情节较为恶劣;
其四,瑞之顺公司毁灭诉前保全证据的行为严重妨害本案诉讼的正常开展,亦在客观上增加周勤一方的维权成本,该情节在赔偿裁量中亦应一并考量。据此,周勤诉请瑞之顺公司赔偿其经济损失及维权合理费用共计100万元,原审法院予以支持。
原审法院判决:一、瑞之顺公司立即停止侵害涉案专利权的行为,即停止制造、销售、许诺销售侵权产品并销毁库存侵权产品;二、瑞之顺公司于判决生效之日起十日内赔偿周勤经济损失及维权合理费用共计1000000元。如果未按判决指定的期间履行给付金钱的义务,应当按照《中华人民共和国民事诉讼法》第二百五十三条之规定,加倍支付迟延履行期间的债务利息。案件受理费13800元,由瑞之顺公司负担。
二审期间,周勤为支持其答辩主张,向本院提交了一份新证据:第48098号无效宣告请求审查决定书(以下简称第48098号审查决定),拟证明瑞之顺公司针对涉案专利权第二次提出无效宣告请求,国家知识产权局于2021年2月3日作出第48098号审查决定,再次维持涉案专利权有效,故涉案专利权具有很高的稳定性。
瑞之顺公司的质证意见为:认可该份证据的真实性、合法性及关联性,但不认可该份证据的证明目的。本院的认证意见为:对该份证据的真实性、合法性及关联性均予以认可。
瑞之顺公司在二审诉讼中未提交新证据。
本院经审理查明,原审法院查明的事实基本属实,本院予以确认。
本院另查明:
(一)瑞之顺公司在二审询问中述称:
1.其在提交的上诉状中主张被诉侵权技术方案不落入涉案专利权利要求1的保护范围,是建立在原审法院在瑞之顺公司处诉前证据保全的被诉侵权产品上不存在冲压粒子、冲压粒子固定螺杆、真空泵、连通管路等外部结构的立论基础之上。换言之,因为原审法院在证据保全现场拍摄的照片上未显示冲压粒子、冲压粒子固定螺杆、真空泵、连通管路等外部结构特征,相应地,被诉侵权产品自然也就不具有涉案专利权利要求1所限定的“设于主滚筒外侧面上的冲压粒子阵列”“用于把冲压粒子固定在主滚筒外侧面上的冲压粒子固定螺杆”“冲压粒子与主滚筒外侧面相连的底面上设有一个与冲压粒子同轴的圆锥形或圆柱形的匀气凹腔及至少一条与匀气凹腔相通的径向抽气凹槽”“冲压粒子固定螺杆上设有导通匀气凹腔和抽真空抽气通道的导气结构”“抽气孔和真空泵之间设有连通管路”等技术特征。
2.原审法院针对其在本案诉讼过程中实施转移、处分证据保全证物之妨害诉讼的行为,决定对其罚款20万元,其已向原审法院缴纳罚款。
(二)瑞之顺公司的特别授权代理人顾新伟、时锋于2019年11月21日向原审法院提交书面答辩状,在该答辩状的答辩要点之“即便案涉专利有效,瑞之顺公司产品的技术特征并未覆盖其全部权利要求,不构成专利侵权”部分载明如下内容:
“1.权利要求1中描述:抽气扇环槽前端的过渡半圆圆心固定位于主滚筒的轴线和副滚筒的轴线所确定的平面和通气孔圆心轨迹线的相交点上。即该专利产品的抽气槽轴线与两个滚筒轴线平面存在一定的夹角,但瑞之顺公司产品的抽气槽轴线位于两个滚筒轴线的平面内,并且,经过实践证明,该创新能够显著地减少排水板的气泡数量,提高产品的合格率。
2.权利要求5中描述:冲压粒子与主滚筒的外侧面相连一端的侧面均布有三至六条走向与冲压粒子轴线平行的凸台凹槽。但瑞之顺公司的产品,其冲压粒子侧面的凸台凹槽与冲压粒子轴线并不平行,而是贯穿冲压粒子的整个侧面,由此制造的产品,可以成倍地增加轴向抗压能力,进而延长产品的使用寿命。
3.权利要求7中描述:圆台形冲压粒子与主滚筒外侧面相连的底面上设有的匀气凹腔为圆锥形。但瑞之顺公司的产品,其底部匀气凹腔为圆柱形,该创新能够在冲压粒子表面形成更稳定的负压,使产品在冲压前、挤压中、挤压后吸附更牢固,吸附时间更长,有利于凸台的成型、稳定。
4.权利要求9中描述:冲压粒子固定螺杆和冲压粒子加设有点固结构。但瑞之顺公司的冲压粒子与固定螺杆之间没有点固结构,而是通过两者之间更加精密的螺纹配合来达到防松效果,同时,又为客户保留了冲压粒子的可替换性,使客户的换型时间更短,换型模具成本更低。
5.权利要求10中描述:冲压粒子固定螺杆与主滚筒相连的一端的端面和主滚筒之间设有防松用的弹性元件。如按照涉案专利所设计,固定螺杆与冲压粒子进行点固固定,且固定螺杆底部再放置弹性元件,根据机械行业通常标准,冲压粒子紧密贴合在滚筒表面与固定螺杆按预设压力压紧弹性元件这两个设计目的无法同时实现。而瑞之顺公司的固定螺杆底部不设有弹性元件,由固定螺杆与滚筒之间的螺纹产生拧紧力,使螺杆与滚筒按预设扭矩连接,其后,冲压粒子再通过螺杆上部的拧紧力与滚筒表面紧密贴合,有效地解决了原来设计中冲压粒子易松动,从而导致产品批量缺陷的问题。”
(三)原审法院就本案于2019年12月17日组织第一次听证,周勤的委托诉讼代理人赵臻淞、倪歆晨,以及瑞之顺公司的委托诉讼代理人顾新伟、时峰参加了该次听证。听证笔录记载有如下内容:“……助(注:主持该次听证的原审法院的跟案法官助理):关于被告的答辩状所称的被控侵权产品的技术特征跟你的权利要求是没有完全覆盖,不构成专利侵权,对于这一点你方什么意见。原代:我们请求法庭现场进行现场勘验进行相应的调查。助:相应的勘验,是不是还要把机器设备给拆解下来。原代:如果说按照被告就提到这个节点的话,应该是不需要完全去拆解,其实是四个螺丝应该就可以了,你们那套保全设备应该还在的。被代:我来稍微解释一下。这个东西它本身特别简单,就是一个巨大的铁架子,然后是上下两个滚筒,然后它是靠电机来驱动这两个滚筒。滚筒一个是凸的,一个是凹的,拆解的话恐怕非常费劲的,然后外加一个抽真空的一个设备,它就是这样一个状态。然后如果需要的话,我们其实拍视频各方面都可以来佐证这是一个什么样的设备。助:第一点你拍的是否是原告主张的被控侵权产品,第二点就是说你这样拍下来能不能完全覆盖掉你的技术特征跟本案的相关联的技术特征,这两个问题是吧?被代:我可以拍法官过来保全的那套设备,它就是一个固定的状态。助:你们的意思是说不拆解也能够达到这个比对他所有的涉案技术特征的这样一个目的。被代:完全可以。……”
(四)瑞之顺公司于2020年7月1日向原审法院书面告知,其自即日起解除与江苏瑞莱律师事务所顾新伟律师就本案的特别授权委托代理关系。瑞之顺公司于2020年10月1日向原审法院书面告知,其自即日起解除与江苏瑞莱律师事务所时锋律师就本案的特别授权委托代理关系。2020年10月1日,浙江纳祺律师事务所向原审法院提交公函,告知在原告周勤与被告瑞之顺公司侵害发明专利权纠纷一案中,该所已接受瑞之顺公司的委托,指派朱**宝、倪锋律师担任该公司的诉讼代理人。
本院认为:本案为侵害发明专利权纠纷,结合当事人的诉、辩意见及二审查明的事实,本案二审争议焦点问题为:在瑞之顺公司转移原审法院已经采取保全措施的证据的情况下,原审法院推定被诉侵权产品实施的技术方案落入涉案专利权利要求1的保护范围是否正确。
瑞之顺公司上诉认为,原审法院证据保全拍摄所得的照片显示被诉侵权产品并不具有冲压粒子、冲压粒子固定螺杆、真空泵、连通管路等部件,相应地,被诉侵权产品不具有涉案专利权利要求1所限定的“设于主滚筒外侧面上的冲压粒子阵列”“用于把冲压粒子固定在主滚筒外侧面上的冲压粒子固定螺杆”“冲压粒子与主滚筒外侧面相连的底面上设有一个与冲压粒子同轴的圆锥形或圆柱形的匀气凹腔及至少一条与匀气凹腔相通的径向抽气凹槽”“冲压粒子固定螺杆上设有导通匀气凹腔和抽真空抽气通道的导气结构”“真空泵”“抽气孔和真空泵之间设有连通管路”等六项技术特征,故被诉侵权产品实施的技术方案不落入涉案专利权利要求1的保护范围。对此,本院认为:
首先,关于被诉侵权产品是否具有冲压粒子、冲压粒子固定螺杆、真空泵、连通管路等部件。鉴于原审法院证据保全拍摄的照片确未显示被诉侵权产品具有冲压粒子、冲压粒子固定螺杆、真空泵、连通管路等部件,且瑞之顺公司在二审询问中亦明确述称,其关于被诉侵权产品实施的技术方案不具有涉案专利权利要求1限定的上述六项技术特征的主张是建立在证据保全现场的被诉侵权产品缺少上述部件的基础之上,故有必要对“被诉侵权产品是否具有冲压粒子、冲压粒子固定螺杆、真空泵、连通管路等部件”这一待证事实作出认定。
一方面,民事诉讼证据规定第三条规定:“在诉讼过程中,一方当事人陈述的于己不利的事实,或者对于己不利的事实明确表示承认的,另一方当事人无需举证证明。在证据交换、询问、调查过程中,或者在起诉状、答辩状、代理词等书面材料中,当事人明确承认于己不利的事实的,适用前款规定。”民事诉讼证据规定第五条第一款规定:“当事人委托诉讼代理人参加诉讼的,除授权委托书明确排除的事项外,诉讼代理人的自认视为当事人的自认。”
本案中,瑞之顺公司在一审阶段委托的特别授权代理人顾新伟、时锋于2019年11月21日向原审法院提交了书面答辩状,明确承认被诉侵权产品存在冲压粒子、冲压粒子固定螺杆等部件,应认为构成瑞之顺公司就其被诉侵权产品技术方案相关内容的自认。
进而,结合瑞之顺公司在2019年11月21日答辩状中记载的“瑞之顺公司产品的抽气槽轴线位于两个滚筒轴线的平面内”“瑞之顺公司的产品,其底部匀气凹腔为圆柱形,该创新能够在冲压粒子表面形成更稳定的负压,使产品在冲压前、挤压中、挤压后吸附更牢固,吸附时间更长,有利于凸台的成型、稳定”,以及代表瑞之顺公司于2019年12月17日参加原审法院组织的第一次法庭调查的特别授权代理人顾新伟、时锋当庭自认的内容,即“这个东西它本身特别简单,就是一个巨大的铁架子,然后是上下两个滚筒,然后它是靠电机来驱动这两个滚筒。……然后外加一个抽真空的一个设备,……”,可以认定被诉侵权产品具有将主滚筒内的气体向外抽取,以便在滚筒内部形成负压从而更牢固地吸附位于滚筒表面冲压粒子的真空抽气泵装置,并可以合理认定为了将主滚筒内的气体顺利抽出,被诉侵权产品的主滚筒上必然设置有向外排气的结构以及与外部负责抽气的真空抽气泵连接的管路。
进而,结合原审法院在瑞之顺公司现场证据保全拍摄所得照片,可清晰反映在与被诉侵权产品主滚筒一端固定连接的圆环形端板上存在圆孔以及从该圆孔向外部延伸出的管道,故可以合理认定被诉侵权产品必然存在涉案专利权利要求1限定的“抽气孔和真空泵之间设有连通管路”的技术特征。另一方面,民事诉讼证据规定第九条规定:“有下列情形之一,当事人在法庭辩论终结前撤销自认的,人民法院应当准许:
(一)经对方当事人同意的;
(二)自认是在受胁迫或者重大误解情况下作出的。人民法院准许当事人撤销自认的,应当作出口头或者书面裁定。”虽然,瑞之顺公司在一审的后续阶段更换了委托诉讼代理人,更换后的委托诉讼代理人否认被诉侵权产品存在冲压粒子、冲压粒子固定螺杆、真空泵、连通管路等部件,相当于推翻了瑞之顺公司此前的自认,但根据前述司法解释关于允许撤销自认的规定,瑞之顺公司并无证据证明其最初委托的诉讼代理人在答辩状和原审法院第一次法庭调查中自认的内容是在受到胁迫或重大误解的情况下作出,且其对自认内容的撤销也没有征得涉案专利权人周勤的同意,故瑞之顺公司在本案原审阶段更换诉讼代理人后对相关技术事实予以否认,依法不能产生推翻其在本案原审阶段更换诉讼代理人之前自认事实的法律效力。因此,瑞之顺公司关于被诉侵权产品不具有冲压粒子、冲压粒子固定螺杆、真空泵、连通管路等部件的上诉理由不能成立,本院不予支持。
其次,关于被诉侵权产品实施的技术方案是否落入涉案专利权利要求1的保护范围。《中华人民共和国民事诉讼法》第十三条第一款规定:“民事诉讼应当遵循诚实信用原则。”知识产权民事诉讼证据规定第一条规定:“知识产权民事诉讼当事人应当遵循诚信原则,依照法律及司法解释的规定,积极、全面、正确、诚实地提供证据。”
知识产权民事诉讼证据规定第十四条规定:“对于人民法院已经采取保全措施的证据,当事人擅自拆装证据实物、篡改证据材料或者实施其他破坏证据的行为,致使证据不能使用的,人民法院可以确定由其承担不利后果。构成民事诉讼法第一百一十一条规定情形的,人民法院依法处理。”
知识产权民事诉讼证据第二十五条第一款规定:“人民法院依法要求当事人提交有关证据,其无正当理由拒不提交、提交虚假证据、毁灭证据或者实施其他致使证据不能使用行为的,人民法院可以推定对方当事人就该证据所涉证明事项的主张成立。”根据上述法律、司法解释的规定精神,对于被人民法院采取保全措施的被诉侵权产品或者其他证据,被诉侵权人擅自实施毁损、转移证据等行为,致使是否侵权无法查明的,人民法院可以依法推定权利人就该证据所涉证明事项的主张成立。
本案中,涉案专利权利要求1限定了诸多技术特征,且部分技术特征涉及产品内部结构及位置连接关系,故如果无法接触、观察被诉侵权产品实物,显然不易查明被诉侵权产品实施的技术方案是否全面覆盖涉案专利权利要求1所限定的全部技术特征。原审法院在对被诉侵权产品采取证据保全时已明确告知瑞之顺公司不得擅自改变证据保全之证物的现状,瑞之顺公司的法定代表人在保全笔录上亦签字确认。
但瑞之顺公司此后不仅实施了擅自转移、处分被诉侵权产品的行为,而且在原审法院组织双方委托代理人进行现场勘验时仍拒不告知被诉侵权产品的准确去向,导致原审法院的勘验目的落空,无法组织双方当事人围绕被诉侵权产品实物展开技术特征比对。
瑞之顺公司实施的上述妨害民事诉讼行为,严重悖离诚信原则,且人为加大了法院查明技术事实的难度,理应为此承担相应不利的法律后果。原审法院基于瑞之顺公司实施的妨害民事诉讼行为,依法推定被诉侵权产品实施的技术方案落入涉案专利权利要求1的保护范围,并无不当。
瑞之顺公司上诉还认为,其因转移诉前保全证据已被原审法院处以罚款,在此基础上,原审法院认为被诉侵权产品落入涉案专利权的保护范围,属于对瑞之顺公司应承担不利后果的不当扩大。对此,本院认为,瑞之顺公司擅自实施转移、处分证据保全证物的行为构成对民事诉讼的妨害,原审法院对其采取罚款的强制措施,属于公法层面的制裁,体现的是法律对于瑞之顺公司妨害民事诉讼、破坏诉讼秩序的否定性评价。
原审法院在侵权判定中基于瑞之顺公司实施的妨害诉讼行为,推定“被诉侵权产品的技术方案落入涉案专利权的保护范围”,体现的是对于“谁主张、谁举证”这一民事诉讼证明基本法则在特定情形下的适当修正,目的是要避免因僵化、机械适用该证明基本法则而可能给寻求司法救济之善意无过错的专利权人造成不公正的结果。
人民法院对于被诉侵权人实施的妨害民事诉讼行为,分别对其课以公法层面的制裁和私法层面的不利事实推定,两项举措各司其职,并行不悖。原审法院作出不利于瑞之顺公司之事实推定,系建立在其在先实施了妨害民事诉讼行为的事实基础之上。正是由于瑞之顺公司实施的妨害民事诉讼行为,最终导致本案关键技术事实无法准确查明。
倘若将无法准确查明技术事实所产生的结果意义上的证明责任风险,不分情况地一概分配给对此毫无过错的专利权人,并以此为由驳回其专利侵权指控,对专利权人而言难谓公正,亦无异于对不法实施妨害民事诉讼行为之被诉侵权人予以纵容,不符合现代民事诉讼应当兼顾程序正义与实体正义之价值理念。因此,瑞之顺公司关于“原审法院不当扩大其承担的不利后果范围”的上诉理由,本院亦不予支持。
综上,原审法院基于瑞之顺公司对证据保全的被诉侵权产品所实施的妨害民事诉讼行为,推定被诉侵权产品的技术方案全面覆盖涉案专利权利要求1的全部技术特征,落入涉案专利权的保护范围,具有充分的事实和法律依据,本院予以维持。
综上所述,瑞之顺公司的上诉请求不能成立,应予驳回;原审判决认定事实清楚,适用法律正确,应予维持。依照《中华人民共和国民事诉讼法》第一百七十条第一款第一项之规定,判决如下:
驳回上诉,维持原判。
二审案件受理费13800元,由无锡瑞之顺机械设备制造有限公司负担。
本判决为终审判决。
审判长 何 鹏
审判员 欧宏伟
审判员 梁晓征
二〇二一年六月二十三日
法官助理姜琳浩
书记员管众





